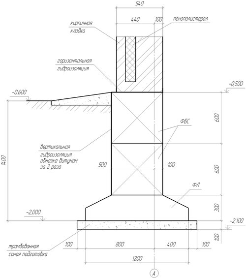
Эскиз фундамента является неотъемлемой частью процесса строительства. Он представляет собой графическое изображение будущего фундамента, которое помогает понять его конструкцию и расположение на участке.




















.jpg)


































Как создается эскиз фундамента?
Для создания эскиза фундамента необходимо учесть ряд важных факторов, таких как тип грунта, нагрузка на фундамент, климатические условия и другие. Строительные инженеры и архитекторы проводят необходимые расчеты и создают графическое представление будущего фундамента.
Важно отметить, что эскиз фундамента не является окончательным проектом. Он служит основой для дальнейшей разработки и детализации проекта, включая выбор материалов, определение размеров и формы фундамента.






.jpg)















































Зачем нужны фото?
Фотографии в данной статье помогут вам лучше понять процесс создания эскиза фундамента. Вы увидите различные варианты эскизов, примеры реальных объектов и сможете оценить их качество и правильность.
Фото также могут вдохновить вас на создание своего уникального эскиза фундамента или помочь вам выбрать подходящий вариант для своего будущего строительства.